Design
We provide thoughtful, logical design for your facility that is ergonomic and well-suited for your staff and patrons. We are not fixated on expensive machines with the latest bells and whistles; we are invested in proven equipment that works. We collaborate with you personally to design a facility that conforms to your skills and your budget. When you collaborate with us, you will save time, labor, effort, and frustration. You will prepare food faster, with lower costs, happier staff, and more consistent service.
Image from Hrovatin, Jasna, et al. "Ergonomic suitability of kitchen furniture regarding height accessibility." Collegium antropologicum 39.1 (2015): 185-191.
What is ergonomic design?
Ergonomics is the study of how human bodies move through workspaces. When ergonomic principles are applied in a kitchen, it is safer, less tiring, and less stressful to use, especially over long periods of time. Here are three ways that ergonomics can be applied in a commercial kitchen:
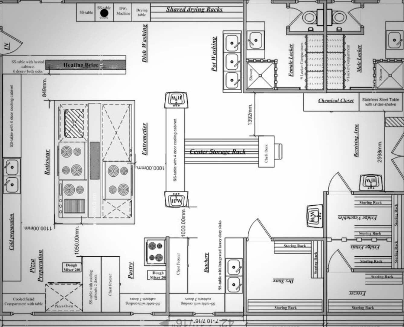
Equipment Plan
An ergonomic plan for equipment type and placement will accommodate the specific safety, sanitation, and execution needs of your kitchen. Your menu and methods of preparation will dictate the plan of your kitchen, e.g. zone style, assembly line style, or island style. If you anticipate that your menu and preparation may drastically change, then that can be built into your plan. An ergonomic plan means fewer bottlenecks, fewer accidents, and more consistent service.
Space
Volume, number of staff, and style of service dictate space in your kitchen. Staff must be able to move between equipment and stations without awkward postures. Excellent organization maximizes space. Ergonomic space organization means speedy workflow without staff bumping into each other, especially at peak periods.
Workstation Organization
Researched norms on human proportions, in combination with your kitchen’s preparation methods dictate how you should configure the workstation in all three dimensions. An ergonomic workstation means your cooks feel more comfortable and more in control.
Ergonomics is one set of tools in the comprehensive kit of expertise provided by Fowler Culinary Concepts.
Contact us for more information.

